¶«Éý¹ú¼Ê¹ÙÍø

ÖÇÄÜÖÆÔì
ÖÇÔì·þÎñ

ÍÆ¶¯ÐÂÒ»´úÐÅÏ¢ÊÖÒÕÓëÖÆÔìÊÖÒÕÈںϣ¬£¬£¬£¬£¬£¬£¬×ÅÁ¦´òÔìÈ«Êý×Ö»¯ÔËÓªµÄÖǻ۹¤³§

ÖÇÔìÓë·þÎñ > °¸ÀýÏêϸ
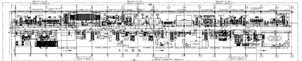
Æû³µ¼°Á㲿¼þÐÐÒµ£¨ÇúÖá¼Ó¹¤Ïߣ©
2021.11.23 15510 ×ֺŠA- A A+

¡¡¡¡¼Æ»®ÀàÐÍ£ºË«ÊúÁº£¬£¬£¬£¬£¬£¬£¬èì¼Ü»úеÊÖ

¡¡¡¡³ÐÔØÄÜÁ¦£ºµ¥ÊÖ¿Éץȡ50kg-300kg¹¤¼þ

¡¡¡¡²úÆ·ÖÖÀࣺ¼æÈÝ8-9ÖÖ²úÆ·£¬£¬£¬£¬£¬£¬£¬5L-15LÇúÖᣬ£¬£¬£¬£¬£¬£¬Ö÷ÒªÓÐΫ²ñ¡¢´÷Ä·ÀÕ¡¢¿µÃ÷˹¡¢Îý²ñ¡¢¿¨ÌرËÀÕ¡¢¶·É½¡¢ÎÖ¶ûÎÖ¡¢µÀÒÀ´ÄµÈÆ·ÅÆ²úÆ·¡£ ¡£¡£¡£¡£¡£

¡¡¡¡Ô°µØ¹æÄ££º³¤120m¡Á¿í21m

¡¡¡¡¾«ÒæÉú²ú£ºµ¥¼þÁ÷£¬£¬£¬£¬£¬£¬£¬100%ÏȽøÏȳö¡£ ¡£¡£¡£¡£¡£

¡¡¡¡²úÆ·È«Àú³Ì×·ËÝϵͳ£º×Ô¶¯ÊÕÂÞ¼Ó¹¤Àú³ÌÐÅÏ¢£¬£¬£¬£¬£¬£¬£¬×Ô¶¯×èµ²Òì³£/©¹¤Ðò¹¤¼þ£»£» £»£» £»£»

¡¡¡¡¶«Éý¹ú¼Ê¹ÙÍøÖÆÔìÖ´ÐÐϵͳ£¨MESϵͳ£©£º×Ô¶¯»¯×°±¸¾ÙÐÐʵʱ¼à¿Ø£¬£¬£¬£¬£¬£¬£¬OEEͳ¼ÆÆÊÎö£¬£¬£¬£¬£¬£¬£¬Éú²úÊý¾Ýʵʱ¼à¿Ø£¬£¬£¬£¬£¬£¬£¬Ê¹Éú²úÀú³ÌÊý¾Ý͸Ã÷»¯¡¢¿ÆÑ§»¯¡£ ¡£¡£¡£¡£¡£

¡¡¡¡ÊµÑéЧ¹û£ºÐ§ÂÊÌáÉý32%£¬£¬£¬£¬£¬£¬£¬Ö°Ô±½ÚÔ¼49%£¬£¬£¬£¬£¬£¬£¬ÖÊÁ¿Îȹ̡¢Êý¾Ý͸Ã÷¡£ ¡£¡£¡£¡£¡£



ɨһɨ
·ÖÏíµ½
ÍøÕ¾µØÍ¼